Greatest rental property EVER.
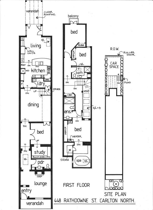
448 Rathdowne St, Carlton North.
Seriously it’s so amazing I can’t believe it’s a rental property and not for sale.
LOOK AT THAT SPA!
- Plain and unassuming from the front…
The room with the spa is mine. I’ll let you all borrow it if you’re really nice to me though.
x Kitten of Doom















oh.my.god – amazing… i love real estate hah
how much was this property to rent??
It was $900 a week.
Real estate is one of my favourite things ever. I think I am the only one who looks forward to getting the Melbourne Times on their doorstep each week!
Haha, this is our house – and FYI the room the with spa is mine!
Jealoussssss… 🙂