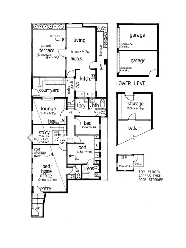
The house opposite the Union is for sale!

98 Webb St is for sale.  For a paltry $1.3m-$1.5m, you can roll straight home across the road from the pub at the end of your latest drinking session.

Everybody chip in!

Photos courtesy of realestateview.com.au.

~ by Kitten of Doom on October 7, 2010.

2 Responses to “The house opposite the Union is for sale!”

  1. Your name is Brie, does this mean you are a girl? Haha.. that probably sounds super weird but I kind of thought you were a guy? Anyway… the 7D would be awesome, if I had a little more money to burn I would have definitely got the 7D. I’d love a full frame but the expense of buying new lenses (all my lenses are for cropped frame sensor) freaks me out a little. What are you shooting with at the moment?

    P.S this house is very sexy haha

  2. I am indeed a girl 😀 See –> https://kittenofdoom.com/about/

    I’m currently shooting with a Pentax K100D. Bought it brand new in 2007 for $700 hahahah… so yer a bit of an upgrade is in order, but it is actually a really great camera.

Leave a comment